Engineering
Op deze pagina vertellen we je graag meer over onze dienst Engineering.
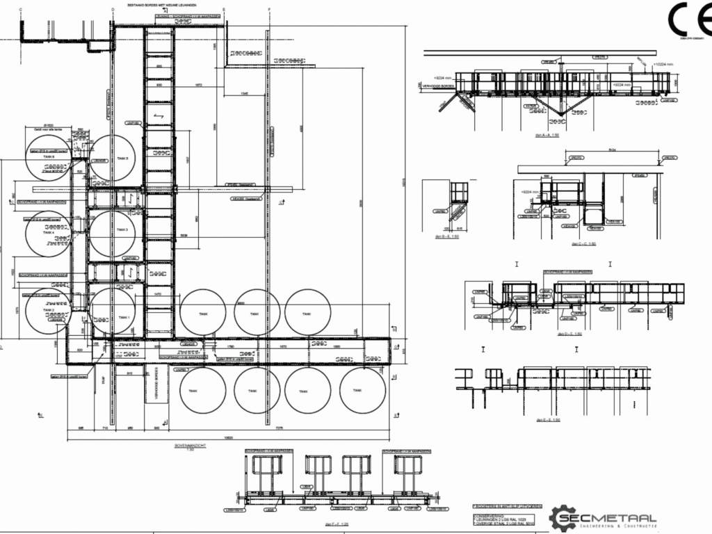
Van idee naar uitvoerbaar ontwerp
Een goed ontwerp is de basis van elk succesvol project. Wij vertalen de wensen van de klant naar heldere 2D tekeningen en gedetailleerde 3D modellen. Dit doen we met behulp van AutoCAD, Inventor en Tekla Structures. Of het nu gaat om een nieuwe constructie of een aanpassing aan een bestaande situatie, wij zorgen voor een technisch kloppend ontwerp dat klaar is voor productie.
We starten altijd met een nauwkeurige inmeting op locatie, eventueel met 3D scanning. Zo brengen we de bestaande situatie volledig in kaart. Vervolgens werken we het ontwerp uit, bespreken dit met de klant en maken productietekeningen voor onze werkplaats. Dankzij deze aanpak voorkomen we verrassingen en besparen we tijd en kosten in de uitvoerende fase.
Wat kunnen wij voor je doen
Onze tekeningen vormen de ruggengraat van elk project. Door vroegtijdig knelpunten te signaleren en op te lossen, zorgen we voor een soepel verloop van ontwerp tot uitvoering. Klanten waarderen onze heldere communicatie, technische kennis en praktische aanpak.
- Nauwkeurige inmeting en 3D scanning
- Heldere 2D en 3D tekeningen
- Efficiënt proces zonder verrassingen










Offerte aanvragen
+31 6 30 64 89 95
info@secmetaal.nl
SEC Metaal B.V.
Kooiweg 25 | 4631 SZ | Hoogerheide